ShodhKosh: Journal of Visual and Performing Arts
ISSN (Online): 2582-7472

THE EFFECTIVENESS OF THE ‘INGAT PESAN IBU’ CAMPAIGN IN CHANGING LATE ADOLESCENT BEHAVIOR IN THE TOURISM AREAS OF BALI, BANDUNG, AND YOGYAKARTA

Treasure of Punjab: Gurudwaras of historic city Sultanpur Lodhi

 

 Shruti H Kapur 1Icon

Description automatically generated, SukritI Dogra 2Icon

Description automatically generated

 

1 Professor, Architecture, CT Institute of Architecture and Planning Jalandhar, Punjab, India

2 Assistant Professor, Architecture, CT Institute of Architecture and Planning Jalandhar, Punjab, India

 

A picture containing logo

Description automatically generated

ABSTRACT

 A Gurdwara is a Sikh house of worship, and the Nishan Sahib, or Sikh religious and national flag, is what makes it distinctive from the outside. Similar to a church steeple or the minaret of a mosque, this directs worshippers to the appropriate location. "The door or house of the Guru" is what gurdwara implies. This paper will trace the elements of Sikh architecture on Gurudwaras of Sultanpur Lodhi.   Documentation contains an analysis of the prominent architectural features of the Gurudwaras. Most of the Gurudwaras represent significant events in Sikh history as they are built at sites associated with Guru Nanak Dev Ji. The paper examines the significance of sacred place. This paper traces the elements of Sikh architecture found in the Gurudwaras of Sultanpur Lodhi. It includes an analysis of the key architectural features of these Gurudwaras, examining their significance as sacred places. The paper will determine the historical and cultural contexts in which each Gurudwara was originally built and how they have changed over time. Additionally, it will provide a comparative analysis of all the Gurudwaras in Sultanpur Lodhi.

 

Corresponding Author

Shruti H Kapur, shrutihkapur@gmail.com

DOI 10.29121/shodhkosh.v5.i2.2024.983   

Funding: This research received no specific grant from any funding agency in the public, commercial, or not-for-profit sectors.

Copyright: © 2024 The Author(s). This work is licensed under a Creative Commons Attribution 4.0 International License.

With the license CC-BY, authors retain the copyright, allowing anyone to download, reuse, re-print, modify, distribute, and/or copy their contribution. The work must be properly attributed to its author.

 

Keywords: Gurudwaras, Sultanpur Lodhi, Sikhism, Sacred Place, Pilgrimage

 

 

 


1. INTRODUCTION

Sultanpur Lodhi, a historic city in Punjab, India, stands as a significant landmark in Sikh history and spirituality. Nestled along the banks of the Sutlej River and the Kali Bein stream, the city is renowned for its deep connection to Guru Nanak Dev Ji, the founder of Sikhism. Guru Nanak spent 14 transformative years in Sultanpur Lodhi, a period that profoundly influenced the development of Sikh spiritual and cultural traditions. This deep-rooted connection makes Sultanpur Lodhi a focal point for Sikh pilgrimage and an enduring symbol of the Sikh faith.

The city's landscape is marked by a unique blend of historical and architectural elements, reflected in its numerous Gurudwaras—Sikh places of worship. Each Gurudwara in Sultanpur Lodhi holds historical and spiritual significance, recounting various episodes from Guru Nanak's life and the life of his sister, Bebe Nanaki Ji. These sacred sites are not only pivotal for religious practice but also stand as architectural marvels, showcasing the evolution of Sikh architecture through different historical periods.

This paper aims to explore and document the architectural elements and historical contexts of the Gurudwaras in Sultanpur Lodhi. By analyzing the key architectural features of these sacred sites, the study seeks to uncover their significance as religious landmarks and their evolution over time. The paper will also provide a comparative analysis of the Gurudwaras, highlighting how each reflects the broader trends in Sikh architectural design and the socio-cultural influences that shaped them.

Understanding the architectural and historical context of these Gurudwaras offers valuable insights into the rich heritage of Sultanpur Lodhi. This research will contribute to a deeper appreciation of the city's role in Sikh history and the architectural diversity of its sacred structures. By tracing the development of Sikh architecture and its adaptation to modern needs, the paper will provide a comprehensive view of how these Gurudwaras continue to serve as beacons of faith and cultural identity for the Sikh community and beyond.

 

2.  Literature Review

2.1. Comparison of Case Studies

Table 1           

Table 1 Comparison of Case Studies Source Analysis by Author

Parameters

Harmandir Sahib (Golden Temple), Amritsar

Gurudwara Bangla Sahib, Delhi

Gurudwara Sri Hemkunt Sahib, Uttarakhand

Physical context

Location: Situated in the city of Amritsar, Punjab, India.

Setting: The temple is located in a large complex, surrounded by a man-made lake called the Amrit Sarovar.

Location: Situated near Connaught Place in New Delhi, India. Setting: The Gurudwara complex includes a Sarovar and several auxiliary buildings.

Location: Situated in the Himalayas at an altitude of 4,632 meters.

Setting: Surrounded by seven snow-capped peaks and a glacial lake.

Political context

Historical Significance: Built during the late 16th century when Sikhism was consolidating as a religious force.

Political Turbulence: Witnessed multiple attacks and reconstructions, particularly during the Afghan invasions and Operation Blue Star in 1984.

Historical Significance: Built in the 17th century during the Mughal period.

Political Patronage: Initially a bungalow of Raja Jai Singh, a Hindu Rajput ruler who was a Mughal courtier.

Historical Significance: Built in the 20th century, it is a relatively modern addition to Sikh pilgrimage sites.

Political Stability: Developed during a period of relative political stability in post-independence India.

Spatial Layout

The temple is surrounded by the Amrit Sarovar, symbolizing purity and reflecting the celestial dwelling.

The central prayer hall is the focal point, surrounded by a large Sarovar.

Designed to harmonize with the natural surroundings, with a simple, triangular structure representing a lotus flower.

Architectural Elements

Blend of Islamic, Hindu, and Rajput styles. The golden dome represents an inverted lotus flower.

Influenced by Mughal architecture with its domes and arches.

Modern design with steel and concrete, adapted to withstand harsh weather conditions.

Fenestration and Embellishments

Ornate marble work, frescoes, and inlays reflecting Mughal and Indian art.

Elegant marble façade, gold leaf work, and intricate carvings.

Minimalist design with large windows offering panoramic views of the mountains.

 

 

 

 

 

2.2. Literature Review of Articles

Values and Philosophy in the Design Interpretation of the Sacred Gurudwaras                                                                                      Dr. (Ar.) Kirti Bhonsle Nikam, 2023): Gurudwara buildings incorporate several significant architectural elements. The Prakash Asthan, where the Guru Granth Sahib is placed, is central, positioned under a canopy on an elevated platform above the floor where devotees sit. A Gumbad, or dome, is a prominent feature, with even flat-roofed, rectangular Gurudwaras often having a decorative dome over the Guru Granth Sahib's seat. Occasionally, a small single-room shrine is topped with a Palaki roof, inspired by Bengal architecture. Domes are frequently fluted or ribbed and come in various shapes such as Tarus, hemispherical, oblong, conical, or three-quarters of a sphere, the latter being more common. Typically, the dome springs from a floral base and features an inverted lotus symbol at the top, from which the kalas or ornate finial rises. Domes are usually painted white or gold, with significant Gurudwaras often having domes covered with gold-plated or copper sheets, marble slabs, or white or colored porcelain pieces. Besides the large central dome, four additional domes adorn each corner, along with several smaller domes on the parapets. Facades are usually vertically divided along structural lines of columns, piers, and pilasters, creating well-modeled surfaces with bas-reliefs featuring geometric and floral patterns. For added grandeur, embossed work in sheet brass or copper gilt is lavishly used. In the West, these arches are constructed with Styrofoam, glued to the building, finished with stucco, and then painted.

Art and Architecture of Sikh Baradari at Kuri Islamabad                                                                                                                         (Asif Ali, 2021) :Kuri Baradari’s splendor preserves the legacy of its builders, reflecting why royals created such magnificent monuments. Serving as a link between our past and present, Kuri Baradari has been extensively documented for the first time in archaeological research and restoration. Analytical and scientific studies reveal its era’s art and culture, noting it was built during the decline of Sikh rule after the British sale of Kashmir to Maharaja Gulab Singh under the Treaty of Amritsar. The art and architecture, including floral designs, geometric patterns, and masonry work, are captivating. Mughals introduced the concept of the baradari, which means having twelve openings or doors, though it’s not necessary for baradaris to have twelve doors. Sikh-built baradaris’ architecture varies by use and purpose, featuring ornamental bands, niches, arcades, pillars with brackets, and alcoves. Often built near rivers in serene environments, baradaris provided leisure spaces and served as meeting places for chieftains and venues for dances and musical performances. Kuri Baradari's art blends various cultures, including Mughal, Greek, Persian, Buddhist, and Hindu influences. In today’s global village, where tradition, culture, and religion are fading or being distorted, this study contributes to future generations’ understanding. The research on Kuri Baradari, which has lost much of its architecture, highlights the need for preservation as an important archaeological site in Islamabad, deteriorating due to mishandling and natural calamities.

Architectural Documentation of Gurdawara Singh Sabha Complex, Faisalabad

 (Abdullah, 2016-2017):  The Gurdwara Singh Sabha complex is a marvel of its time, embodying religious, architectural, and cultural heritage. Its continuous use by the school has prevented it from severe disrepair. With involvement from the building heritage department and proper promotion, it could become a significant site for Sikh tourists. Reviving the Gurdwara to its original function could also transform it into a substantial source of revenue.

Sikh Gurdwaras: A Study of the Change in the Punjab (1850-1950)

(Singh J., 2017): This paper examines Sikh gurdwaras in Punjab from the mid-19th to mid-20th century, identifying their numbers and locations. The study covers 'East' Punjab, modern Punjab, and present-day Haryana, with eleven districts in the mid-19th century and sixteen by the mid-20th century. The first section details gurdwaras in mid-19th century Punjab; the second covers mid-20th century Punjab, and the third analyzes changes and factors responsible. In the mid-19th century, eighty-five Sikh sacred places were identified, with Amritsar district having the highest number (sixteen, or 18%) and Karnal the least (two, or 2%). By the mid-20th century, the number increased to two hundred twenty-eight, with Patiala district having the highest number (thirty-three, or 14%) and Mohindergarh the least (two, or 0.8%). The total sacred places rose from eighty-five to two hundred twenty-eight, with seventy-seven (90%) continuing, eight (9%) disappearing, and one hundred fifty-one (66%) newly emerging. Location and distribution changed, influenced by political developments, partition, and mass migrations of Hindus, Sikhs, and Muslims.

 

3. METHODOLOGY

3.1. Introduction to Gurudwaras

   The research begins with a comprehensive introduction to Gurudwaras, their significance, and their historical development. This section will explore the origins of Gurudwaras, their role in Sikhism, and their evolution over time. The purpose is to provide a foundational understanding of what Gurudwaras represent and how they have been shaped by historical and cultural influences.

 

3.2.  Architectural Elements and Spatial Composition of Gurudwaras

   This section examines the architectural elements and spatial compositions of early Gurudwaras, specifically from the 16th to 18th centuries. The research will analyze key architectural features such as layout, design elements, and construction techniques. The focus will be on understanding the traditional architectural language of Gurudwaras during this period.

 

3.3.  Architecture of Gurudwaras Changes Over Centuries

   The research will investigate how Gurudwara architecture has changed over centuries, categorized into three main periods:

·        Early Gurudwaras (16th to 18th Century): Examining the architectural features and spatial composition of Gurudwaras during their formative years.

·        Expansion and Formalization (18th to 19th Century): Analyzing the growth and formalization of Gurudwara architecture, including the influence of regional styles and socio-political factors.

·        Modern Era (20th Century Onwards): Exploring contemporary Gurudwara architecture, including influences from the Sikh diaspora and modern architectural practices.

 

 

 

3.4.  Analytical Framework for the Architecture of Gurudwaras

   The research will develop an analytical framework for understanding Gurudwara architecture, focusing on:

·        Core Architectural Elements: identifying and categorizing the essential architectural features common across Gurudwaras.

·        Spatial Composition: Analyzing the spatial arrangement within Gurudwaras, including the layout of different functional areas.

·        Functional Aspects: Studying the functional requirements of Gurudwaras and how these have shaped architectural design.

·        Aesthetic and Symbolic Elements: Investigating the aesthetic values and symbolic meanings embedded in Gurudwara architecture.

 

3.5.  Literature Review

   A comprehensive literature review will be conducted to gather existing research on Gurudwara architecture. This will include:

·        Comparison of Case Studies: Evaluating different case studies of Gurudwaras to identify common themes and unique characteristics.

·        Review of Articles: Analyzing scholarly articles, books, and other sources to gather insights into the architectural evolution of Gurudwaras.

 

3.6. Data Collection and Compilation

   This phase involves the collection and compilation of data relevant to the study. The data will include historical records, architectural drawings, photographs, and field notes from visits to various Gurudwaras. The data will be systematically organized to facilitate detailed analysis.

 

3.7. Introduction to Sultanpur Lodhi

   The research will provide an introduction to Sultanpur Lodhi, a significant historical and religious site in Sikhism. This section will cover:

·        History of Sultanpur Lodhi: Exploring the historical background and its relevance to Sikh history.

·        Gurudwaras in Sultanpur Lodhi: Detailing specific Gurudwaras in the area, such as Gurudwara Ber Sahib, Gurudwara Hatt Sahib, Gurudwara Sant Ghat, and others.

 

3.8. Architecture Features of Gurudwaras of Sultanpur Lodhi

   This section will focus on the architectural features of the Gurudwaras in Sultanpur Lodhi, analyzing:

·        Historical Relevance: Understanding the historical context and significance of these Gurudwaras.

·        Planning Parameters: Examining the planning and layout of these Gurudwaras in relation to their architectural and functional requirements.

 

3.9. Analysis of Data

   The collected data will be analyzed to compare the planning parameters and architectural elements across different Gurudwaras. This analysis will aim to identify patterns, similarities, and differences in architectural practices across different periods and regions.

 

3.10.  Findings and Conclusive Analysis

   The research will culminate in the findings and conclusive analysis, where the architecture and planning system of all Gurudwaras studied will be synthesized. The conclusions will provide insights into the evolution of Gurudwara architecture and offer recommendations for future studies or architectural practices.                                 

Figure 1

Figure 1 Methodology

Source Author

 

4. INTRODUCTION TO SULTANPUR LODHI

Sultanpur Lodhi rises over the Sutlej River and along the Kali Bein stream, a city that no one forgets after visiting. Sultanpur Lodhi, with its Gurudwaras, streets, dwellings along the streets, and doors and windows in the houses, has the potential to linger in the mind. Sultanpur Lodhi's secret is the length of time Guru Nanak dev ji spent there. This neighbourhood has witnessed 14 years of his existence. There are various Gurudwaras scattered throughout the city, each conveying an unique tale about Guru Nanak Devji. Sultanpur Lodhi is known as Gurudwara Waala Shaher, and each Gurudwara is distinctive in that it is dedicated to some of Guru Nanak Dev ji's and his sister Bebe Nanaki ji's most important life events. The city's urban fabric astounds at every turn: a caper bush emerging from the castle walls of Qila Sarai, the calmly flowing Kali Bein, earthen pots built one on top of the other to form a statue, an onion dome with smaller onions intertwined on the spire of Gurudwaras, and many more (Arshi, 1986).

Figure 2

Figure 2 Sultanpur Lodhi Existance

Source Author    

 

5. HISTORY OF SULTANPUR LODHI

1st century to 6th centuries: In the early years, Sultanpur, also known as 'Sarwmanpur,' was an important Buddhist meditation and knowledge centre.                                                                                                                                                                                               8th century: The city eventually became a Hindu and Buddhist empire. With his armies, Mehmood Gaznavi, an Islamic conqueror, destroyed the Hindu-Buddhist city of Sarwmanpur to ashes.                                                                                                                          

 12th century: Sultan Khan renamed the city after himself, and the memory of Sarwmanpur vanished as the new city of Sultanpur Lodhi arose from the ashes.                                                                                                                                                                              13th century -14th century:  It was an important commercial centre in north India at the time. There were several royal gardens and farms in town during the time. Many royal buildings were built at the period. One of them is Hadira.                                                                                                15th century: Guru Nanak Dev Ji, the founder of Sikhism, spent 14 years, 9 months, and 13 days at Sultanpur Lodhi. Bebe Nanki, his sister, and her husband Bhai Jai Ram, a Nawab Daulat Khan Lodhi official, used to live in this town.                                                                     16th century-19 th century: THE MUGHALS FALLEN IN PUNJAB. Sardar Jassa Singh Ahluwalia founded the principality of Kapurthala. His successor, Sardar Fateh Singh, was assigned the task of annexing the historic town of Sultanpur to the State of Kapurthala in 1777.                                                                                                                                                                                                                      20th century: The most significant event in Sultanpur Lodhi's history during British rule was the construction of the first broad-gauge railway line, connecting Jalandhar-Sultanpur Lodhi-Firozpur, in 1914. Additionally, in 1950, a grain market (now known as Old Dana Mandi) and the town's first Rice Sheller were established. These developments significantly contributed to the town's economic and physical growth, with Sadar Bazaar evolving into one of the city's prominent thoroughfares. The development pattern has changed, and just one side of the bank is now being erected. Mixed commercial enterprises grew to dominate the city's fabric. After Independence in the twenty-first century:                                        

21st century- after Independence:  Little was done in terms of Sultanpur Lodhi urban planning until the end of the twentieth century and the beginning of the twenty-first. The existing form of the city has evolved around two fundamental axes. The main commercial street in the city centre is divided by another important street, which has a considerable influence on the character of the city. The business street has a mediaeval atmosphere. Get away from the city centre. Initially, the majority of development took place around it, but as the number of buildings and structures surrounding it increased, a number of offshoot streets began to sprout from this main street. One of the primary streets that emanates off this main street now travels north-south through the city's centre region. As a consequence, these two streets govern the current structure of the city centre. Because the street slopes gradually towards the perimeter while remaining on high ground in the centre, the city's considerable development occurred in the centre on the highland, but there is less growth and development as one move from the centre to the periphery

Figure 3

Figure 3 Fundamental Axis

 Source Analysis by Author

 

Figure 4

Figure 4  Development of city 

Source Analysis by Author

 

Fine grain is located in the city's centre, and coarse grain is found on the outskirts. Sultanpur Lodhi was meant to be a human-scale pedestrian city. In many locations, most internal roadways are modest, yet they are an important feature of urban architecture, fostering social ties. Sultanpur Lodhi now has eight Gurudwaras scattered around the city, although they are linked by a visual axis. The architecture of Sultanpur Lodhi represents the Sikh spirit. In addition, religious architecture is prevalent in mandirs such as Mandir Mata Asha Rani, Mandir Bhara Mal, Mandir Sing Bhawani, Mandir Ahli Wala Shivala, Mandir Ram Rameshwaram, Mandir Choura Khuh, and more. Lodhi Chitti Masjid, Peer Gabgazi, Panj Peer, Hadira, and Quila Sarai (now residences, Local Police Station) are only a few examples of Mughal architecture in Sultanpur.  (India, 2019)

 

6.  ARCHITECTURE FEATURES OF GURUDWARAS OF SULTANPUR LODHI

6.1. GURUDWARA WAALA SHAHAR

Sultanpur Lodhi is one of the most critical pilgrimages for Punjabis and Sikhs as it has the strongest connections with Guru Nanak Dev Ji reflecting various aspects of his larger than life time span which played conspicuous role in the foundation of great psychological, social, spiritual and cultural heritage of Sikhism. At Sultanpur Lodhi, there are numerous illustrious ancient Gurudwaras devoted to Guru Nanak Dev ji and his sister Bebe Nanki Ji

 

6.2.  Gurudwara Ber Sahib

Historical Relevance of Gurudwara Ber Sahib: Gurudwara Ber Sahib, Sultanpur's primary shrine, is situated on the banks of the Kali Bein stream. Guru Nanak performed his morning ablutions in the Bein. During his time in Sultanpur Lodhi, Guru Nanak Dev Ji would visit the Bein stream every morning for bathing and meditation. He also planted a Jujube sapling there.

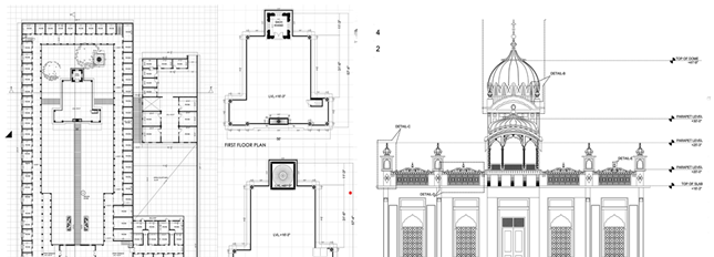
Planning parameter: The four-storey cruciform Gurudwara Ber Sahib has a modest basement beneath the parkash asthan. The main entrance is on the south side, through a three-bay portico with octagonal columns that leads to the foyer. The parkash asthan is located in the centre of the hall, under a white marble canopy (palki). The first-floor plan is identical to the ground floor plan. The side bays act as a gallery and cantilever towards the central component, which is triple-height. Square kiosks on both corners and a chhatri in the centre of the front part above the entry portico are architectural elements. The shrine includes octagonal columns that project to the terrace level and are capped with octagonal kiosks in each corner (Singh).

Figure 5

 Figure 5 Gurudwara Ber Sahib

Source Clicked by Author

 

6.3. Gurdwara Hatt Sahib

Historical Relevance of Gurudwara Hatt Sahib: Guru Nanak worked in the Modi khana (store) of which he was in charge, and the Gurduwara Sri Hatt Sahib honours that time.

Planning parameter: The primary entrance to Gurudwara Hatt Sahib is situated on the southwest side. The layout and facade treatment are symmetrically organized around the central axis. Gurudwara Hatt Sahib is a three-story rectangular building.

On the ground floor, the shrine enclosure features octagonal rooms on all four sides. An arcaded verandah surrounds the hall on both sides, as well as in the front and back, with the verandah extending from the center. The Parkash Asthan, situated at the rear of the main hall, is enclosed by four arcaded piers. Within this area, there is a collection of nine stone weights displayed on a velvet surface, encased in glass, and located near the marble Palki Sahib. The ceilings of the main hall and verandah are at different heights.On the first level, there is a square room built over the Parkash Asthan, along with octagonal chambers featuring projecting eaves painted in blue. Above these chambers is a beautiful ribbed dome adorned with an inverted lotus and a kalasa. Octagonal kiosks are positioned at each corner of the verandah's terrace, with two additional kiosks on the longer walls. In the center of each side, a chhatri is placed.Moving to the first floor, there is a pavilion with three cusped arches on each side. The gilded kalasa is supported by a cusped arched eave and a dome with a lotus petal motif at the base and an inverted lotus at the top. These changes make the text more organized and easier to follow (Kaur, 2019)

Figure 6

Figure 6 Gurudwara Hatt Sahib

 

6.4. Gurdwara Sant Ghat

Historical Relevance of Gurdwara Sant Ghat Sahib:

Sri Guru Nanak Dev took a dip in Kali Bein and performed a sacred Gurbani Kirtan here while accompanied by Bhai Mardana ji who used to play Rabab. Shri Guru Nanak Dev ji returned after 72 hours, around 3 miles upstream, next to a cemetery. A Gurudwara sahib was built at the location. The construction of Gurudwara sahib was overseen by Udasi Mahants throughout Maharaja Ranjit Singh's rule. Sant Sadhu Singh Nirmla, Jathedar Santa Singh Lasuri, and Sant Udham Singh have put in countless hours to rebuild the structures that were destroyed by the floods.

Planning parameter: Sant Ghat Sahib Gurudwara is a three-story, roughly square building constructed on a high platform. On the front (south) and back sides, there are two tiers of five recessed blind cusped arches. Three of these arches have rectangular doors, leaving two blind arches on the lower tier, one on either side of the central entrance. On the east and west sides, two tiers of six blind arches are present, with doors in the bottom tier. The ground floor lacks windows.Towards the rear of the main hall, there is a square Parkash Asthan surrounded by four columns, featuring a circumambulatory path. A large projecting eave adorns the ceiling level, crowned by miniature cupolas on the parapet and square pillared kiosks at each corner. Each side has a central chhatri. A closed square room with three recessed blind arches on each side has been constructed over the Parkash Asthan.The roof features a projecting eave with cupolas at each of the four corners and two additional cupolas in the center of each wall. The second level closely mirrors the pattern of the first floor, including a cusped arched projection eave supporting a ribbed dome with lotus petal motifs at the base and inverted lotus at the top, which, in turn, supports the kalasa.

Figure7

Figure 7 Gurudwara Sant Ghat Sahib

 

6.5. Gurudwara Kothri Sahib

Historical Relevance of Gurudwara Kothari Sahib: Guru Nanak was imprisoned in a modest dwelling in Mohalla Vaddian, confined to a narrow, low-roofed cell while his accounts were under scrutiny in response to a baseless complaint filed by his critics. The Guru Granth Sahib is enshrined in one of the two adjacent small rooms.

Planning parameter: The Gurudwara Kothri Sahib is a rectangular structure with a ground-floor hall accessible through a blind arch entrance on the northern side. In the northeast corner of the shrine, there is a small chamber (kothri) that can be entered through a door. Behind a palki, the Guru Granth Sahib is placed. On the front face of the house, an eave extends to the ceiling. A straight flight of stairs on the western side leads to the first floor. This first-floor chamber, designed as an open pavilion, features a single opening on the front side and three openings on the other three sides. The chamber boasts a curved projection eave, supporting a kalasa atop a 12-ribbed dome with lotus petal motifs at the base and inverted lotus at the top

Figure 8

Figure 8 Gurudwara Kothari Sahib

 

6.6. Gurdwara Antaryatma Sahib

Historical Relevance of Gurdwara Antaryatma Sahib: The site of a mosque where Nawab Daulat Khan once invited Guru Nanak to participate in namaz, the Muslim prayer, is now marked by a flat-roofed rectangular room. Upon observing that the Nawab and the Kadi were merely going through the motions of the ceremony while their minds were preoccupied with worldly matters, Guru Nanak stepped back. When the Nawab asked why he didn't join the prayer, Guru Nanak explained what he and the Kadi had been contemplating during the prayer. According to the Janam Sakhis, both the Nawab and the Kadi fell at the Guru's feet. The only remaining structure from the mosque is the entry gate to the compound

Planning parameter: The Gurudwara is a lovely two-story structure with a central dome and Chhatris. Around the centre axis, the layout and façade treatment are symmetrical.A arcaded verandah surrounds the hall on both sides, as well as in front and back, with the verandah projecting out from the centre. The gleaming white shrine has a wide palm tree-studded front yard encircled by rooms for enthusiasts who prefer to remain overnight.

Figure 9

Figure 9 Gurudwara Antaryatma Sahib

Source Clicked by Author

 

6.7. Gurdwara Guru Ka Bagh

Historical Relevance of Gurdwara Guru Ka Bagh: While Guru Nanak stayed in Sultanpur, he resided with his wife and children in a flat-roofed hall situated in the town's heart. The Gurudwara now stands to honor the residence of Guru Nanak Dev Ji and Bibi Sulakhani after their marriage. It was at this place that their two sons, Baba Sri Chand and Baba Lakhmi Das, were born

Planning parameter: Gurudwara Guru Ka Bagh is a three-story, nearly rectangular building situated on a raised platform. On the ground floor, the shrine enclosure features octagonal rooms on all four sides, with apertures in opposite walls serving as doorways and windows. The staircase is enclosed within two of these chambers. The layout is symmetrical along the middle axis. In the hall, the Guru Granth Sahib is seated on a rectangular platform. There is also a narrow, now-covered well that serves as a historical feature. During excavation, a room in the basement was discovered, believed by researchers to be Shri Guru Nanak Dev Ji's room. The first level replicates the ground floor layout, featuring a central double-height room. A cantilevered balcony with exquisite carving and pietra dura panels adorns the facade of this splendid Gurudwara, which is clad in marble and topped with a golden-tiled dome. These revisions provide a clearer and more structured description of the Gurudwara. (Singh).

Figure 10

 

Figure 10 Gurdwara Guru Ka Bagh

Source Clicked by Author

 

6.8. Gurdwara Bebe Nanaki Ji

Historical Relevance of Gurdwara Bebe Nanaki Ji: Gurdwara Bebe Nanaki Ji, constructed in the 1970s, is a tribute to Guru Nanak's elder sister, Bebe Nanaki. The historical house, a three-story building in Mohalla Chhimbian where Bebe Nanaki is believed to have resided with her husband, Jai Ram, can be found in the old town.

Planning parameter: In the great hall of Gurdwara Bebe Nanaki Ji, the Guru Granth Sahib is respectfully seated in a white marble palaki at the far end. Bebe Nanaki Ji's personal residence is symbolized by the Guru Granth Sahib, placed in a small side room. Above the hall ceiling, a square domed room with arched copings is situated. The corners of the hall's roof are adorned with bulbous domes. Since the land was privately owned, the Bebe Nanaki Istri Satsang Charitable Trust undertook the construction of a public monument, in the form of a gurdwara, with the cornerstone being laid on November 13, 1970. This project was supervised by Bibi Balvant Kaur from Birmingham, United Kingdom. Gurudwara Sahib Bebe Nanki Ji is managed by the Bebe Nanki Charitable Trust, led by Chairperson Bibi Balwant Kaur Ji, and supported by international donations.

Figure 11

        

Figure 11 Gurudwara Bebe Nanki      

 

Table 2

Table 2 Comparison of Planning Parameters of all Gurudwaras

 

 

Gurudwara Ber Sahib

Gurdwara Hatt Sahib

Gurdwara Sant Ghat

Gurudwara Kothri Sahib

Gurdwara Bebe Nanaki

Gurdwara Guru Ka Bagh

Gurdwara Sehra Sahib

Gurdwara Antaryatma Sahib

Planning parameters

Timeline

1937-41

1938

18TH Century

Re:1980

1938

1970

1938

1970

1938

Placement of Shrine  on the Site

 

Center of site

Towards Southern corner  of site

Center of site

Back of site

Towards South West corner of site

Center of the site

Towards South East Corner of site

Towards South West corner  of site

Direction of Main  Entrance

 

South

South West

South

North

North East

North West

West

East

Shape of Gurudwara

 

Cruciform

Rectangular Octagonal  chambers at Corners

Approx. Square

Rectangular

Rectangular

Rectangular Octagonal  chambers at Corners

Rectangular

Approx. Square

Entrances

 

Simple Trabeated in  Blind Arch in

Entrance Portico & chhatri on top

Simple Trabeated in Blind  Arch through Verandah and Chhatri on top

Simple Trabeated in  Blind Arch an Chhatri on top d

Simple Trabeated

Simple Trabeated in  Blind Arch a Chhatri on top nd

Simple Entrance With Iron Gate

Simple Entrance With Iron Gate

Simple Trabeated in  Blind Arch

Elevation detail

 

Front and Rear

Symmetrical & sides  asymmetrical

Front and Rear

Symmetrical & sides  asymmetrical

Front and Rear

Symmetrical & sides  asymmetrical

Front and Rear

Symmetrical & sides  asymmetrical

Front and Rear  asymmetrical & sides

Symmetrical

Front and Rear  asymmetrical & sides

Symmetrical

All sides Asymmetrical

All sides Asymmetrical

Number of Floors

 

4 + Basement

Three

Three

Two

Two

Three

One

Two

 

 

Figure 12

Figure 12 Comparison of Height, Built up And Domes of Al L Gurudwaras

 

6.9. ARCHITECTURE PLANNING SYSTEM OF ALL GURUDWARAS

Architectural plans

Square Plan: Antaryamta Sahib and Sant Ghat sahib Gurudwara

The Gurudwara Sant Ghat Sahib is a majestic three-story edifice, crafted in an approximately square form, standing proudly on an elevated

platform. 

  Figure 13

 Figure 13 Square Plan

 

Antaryamta Sahib: The Gurudwara, an enchanting two-story structure, graces the landscape with a central dome and Chhatris, exuding architectural charm. Along the central axis, both the layout and façade treatment follow a symmetrical design, creating a sense of balance and harmony. Embracing the hall on all sides, an arcaded verandah extends from the center, adding a touch of elegance to the overall composition.

Second Plan: Cruciform Plan The cruciform plan of the structure comprises apses and aisles, with a prominent western portal and an additional entrance on the side.

Cruciform Plan: The planning of Gurudwara Ber Sahib is characterized by a cruciform layout, featuring apses, aisles, and a distinctive southern entrance adorned with a three-bay portico. Adding to the architectural finesse, each corner of the shrine is marked by octagonal columns that extend seamlessly to the terrace level, contributing to the overall aesthetic and structural integrity of the Gurudwara.

Figure 14

 Figure 14 Cruciform Plan

 

Third Plan: Rectangular Plan

This rectangular plan sahib is divided into four types: the first design is a plain rectangle.:

Rectangular Plan

The Gurudwara Kothri Sahib stands as a rectangular architectural marvel, featuring a ground floor adorned with a spacious hall.

Figure 15

                    

Figure 15 Rectangular Plan

                                                   

The second type is rectangular design with octagonal towers in every corner. Another architectural variant is exemplified by Gurudwara Hatt Sahib, characterized by a rectangular design complemented by octagonal towers adorning each corner. This distinctive Gurudwara, spanning four floors, features an intricate interplay of polygons supported by mini towers. The main structure stands adorned with four prominent octagonal towers, and towards the latter third of the rectangle, the prayer hall majestically rises, culminating in a lofty dome that graces the heavens. This harmonious blend of form and function is a testament to the diverse yet captivating architectural expressions found within the rich tapestry of Gurudwaras.

 

 

Gurudwara Guru ka Bagh stands as a three-storey architectural marvel, displaying an almost rectangular structure elevated on a high platform. The ground floor of the shrine enclosure features octagonal rooms on all four sides, contributing to the distinctive design and spatial arrangement of this sacred edifice.

Figure 16

 

Figure 16 Polygon Plan

 

 Fourth Plan: Polygon Plan- Bebe nanki has polygon planning system

Table 3

Table 3 Planning System           

Square plan

Rectangular plan

Polygon plan

Cruciform plan

Gurudwara Antaryamta Sahib

Gurudwara Guru ka Bagh

Gurudwara Bebe Nanki Ji

Gurudwara Ber Sahib

Gurudwara Sant Ghat sahib

Gurudwara Hatt Sahib

Gurudwara Kothri sahib

                                                  

 

7. CONCLUSIVE ANALYSIS

The architectural study of the Gurudwaras in Sultanpur Lodhi reveals a rich tapestry of design elements that not only serve as sacred spaces but also as enduring embodiments of Sikhism's spiritual and cultural heritage. Each Gurudwara, with its distinctive architectural vocabulary, reflects the profound historical and religious significance of Guru Nanak Dev Ji's life and teachings. The cruciform and rectangular plans, apses, aisles, octagonal columns, chhatris, and domes are not mere stylistic choices but are deeply symbolic of the Sikh architectural ethos, emphasizing both functionality and spiritual symbolism.

The architectural features of these Gurudwaras, such as the cruciform layout of Gurudwara Ber Sahib, the octagonal towers of Gurudwara Hatt Sahib, and the intricate interplay of polygons and domes at Gurudwara Guru Ka Bagh, exemplify a sophisticated understanding of geometry and spatial organization. These elements are carefully orchestrated to create spaces that foster spiritual contemplation while also accommodating the practical needs of the worshippers.

Over time, these structures have evolved, integrating modern materials and construction techniques while preserving their core architectural identity. This evolution highlights a dynamic interplay between tradition and modernity, where the fundamental design principles of Sikh architecture are upheld even as new interventions are made. The introduction of contemporary architectural elements, such as reinforced concrete and marble cladding, has enhanced the durability and aesthetic appeal of these sacred spaces, ensuring their continued relevance in the modern era.

The Gurudwaras of Sultanpur Lodhi not only reflect the architectural brilliance of their era but also embody the resilient and adaptive nature of Sikh architecture. They stand as monumental expressions of the city's historical and spiritual significance, maintaining their role as vibrant centers of worship and communal identity. Through the lens of architecture, this study underscores the importance of these Gurudwaras as both sacred and cultural landmarks, preserving the legacy of Guru Nanak Dev Ji in the architectural fabric of Sultanpur Lodhi.

 

CONFLICT OF INTERESTS

None. 

 

ACKNOWLEDGMENTS

None.

 

REFERENCES

Abdullah, A. M. (2016-2017). ARCHITECTURAL DOCUMENTATION OF GURDAWARA SINGH SABHA COMPLEX, FAISALABAD. Ancient Punjab, Volume 4, Page 39-60.

Arshi, P. (1986). Sikh Architecture in Punjab,India. Punjab : East India Book Co.

Asif Ali, T. S. (2021). ART AND ARCHITECTURE OF SIKH BARADARI AT KURI ISLAMABAD : A STUDY BASED ON ANALYTICAL AND STYLISTIC ARCHITECTURAL EVIDENCES. PalArch's Journal of Archaelogy of Egypt/Egyptology, 2565-2576.

Authority, O. o. (2019, March). Retrieved from https://www.puda.gov.in/

Dr. (Ar.) Kirti Bhonsle Nikam, A. H. (2023). Values and Philosophy in the Design Interpretation of the Sacred Gurudwaras. Social Evolution and History, Vol. 12 No. 02 (2023) page 291-324.

India, O. o. (2019, March). Retrieved from https://asi.nic.in/

Karamjit Singh Chahal, S. D. (2012). Architectural Evolution of Gurdwaras : An Overview. The IUP Journal of Architecture, Vol. IV, No. 1, pp. 7-32,

Kaur, R. (2019). A study on architectural aspects of gurudwara and other buildings. International Journal of Research and Analytical Reviews.

Singh, J. (2017). Sikh Gurdwaras : A study of the change in the Punjab (1850-1950). J. Humanities and Social Sciences., page 92-99.

Singh, K. (n.d.). UNDERSTANDING Sikh Architecture through Sikh Shrines in East Punjab. In K. Singh, UNDERSTANDING Sikh Architecture through Sikh Shrines in East Punjab.

Srivastava, A. K. (2018). Study on the basic concept 0f sikhism and it's relevance to the Sikh Gurudwaras. Journal of Advances and Scholarly Researches in Allied Education.

     

 

 

 

 

 

 

Creative Commons Licence This work is licensed under a: Creative Commons Attribution 4.0 International License

© ShodhKosh 2024. All Rights Reserved.